Trilocale in vendita

Palermo, Via Vito la Mantia - Dante
€ 100.000
3 locali 3 locali
93 Mq 93 Mq
1 bagno 1 bagno

Trilocale in vendita

Palermo, Via Vito la Mantia - Dante

Descrizione annuncio

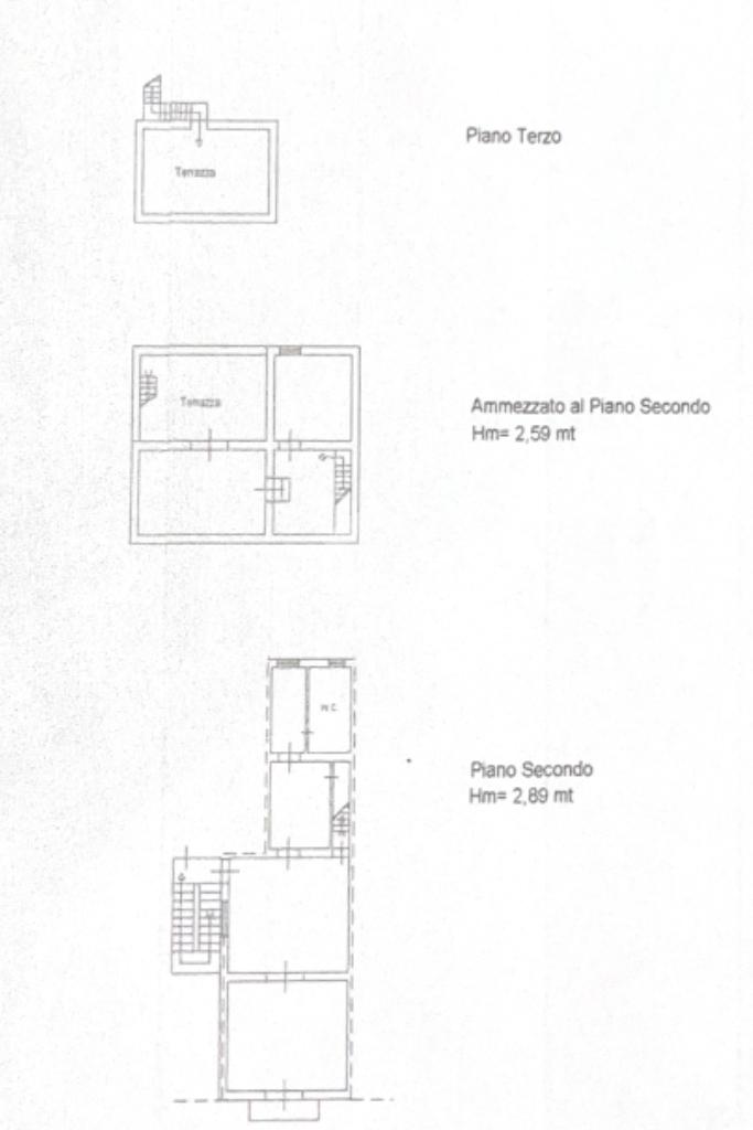
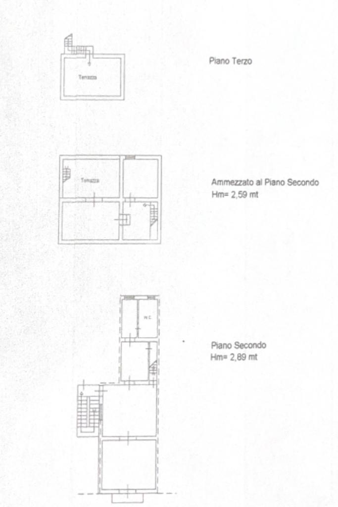
In una delle zone più centrali e servite della città, a pochi passi da via Dante e precisamente ad angolo con via Villa Florio, proponiamo in vendita un interessante appartamento posto al secondo e terzo piano di uno stabile dei primi del Novecento, sprovvisto di ascensore.

L’immobile si sviluppa su due livelli. Al secondo piano l’ingresso si apre su un soggiorno; sulla destra si trova la camera da letto con balcone a prospetto, mentre sulla sinistra un disimpegno conduce alla cucina non abitabile e al bagno. Una scala interna conduce al piano superiore, dove un ulteriore disimpegno dà accesso a una seconda camera da cui si accede a un primo terrazzo. Da qui, attraverso una scala esterna, si raggiunge un secondo terrazzo, ideale per momenti di relax all’aperto.

Attualmente l'immobile è locato con regolare contratto fino a luglio 2026, garantendo una rendita annua di € 4.800,00. Questa caratteristica lo rende particolarmente adatto a chi è alla ricerca di un investimento a reddito immediato, ma rappresenta anche una valida opportunità per un futuro utilizzo abitativo, grazie alla distribuzione funzionale degli spazi e alla presenza di due terrazze private.

A caratterizzare e impreziosire gli ambienti interni è la presenza delle cementine originali, piastrelle decorate tipiche delle costruzioni d’epoca, che donano all’immobile uno stile unico, valorizzandone l’anima storica e conferendo un tocco di eleganza senza arricchiscono gli ambienti con motivi geometrici e colori d’altri tempi. Questi elementi, tipici delle costruzioni dei primi del Novecento, donano carattere, eleganza e valore all’abitazione, rappresentando un prezioso dettaglio per chi apprezza le finiture d’epoca e la bellezza dell’artigianato tradizionale.

La zona è altamente strategica, ricca di servizi, attività commerciali, scuole, università e ben collegata dai mezzi pubblici, rendendo l’abitazione comoda e appetibile sotto ogni punto di vista.

Nota Bene: le presenti immagini risultano poco nitide in quanto vi sono state apportate modifiche per rispetto e privacy dell'inquilina che vi abita.

Contattaci per fissare una visita ai seguenti recapiti: 3517050004 o 0917782647.

Mostra tutto

Nelle vicinanze

Trasporto pubblico Trasporto pubblico
Palermo Notarbartolo
Palermo Notarbartolo
1,4 Km
Palazzo Reale - Orleans
Palazzo Reale - Orleans
1,4 Km
Respighi/Piazza Ziino
Respighi/Piazza Ziino
1,4 Km
Notarbartolo
Notarbartolo
1,4 Km
Veneziano - Villa Florio
Veneziano - Villa Florio
130 m
Ricariche auto elettriche Ricariche auto elettriche
EnelX EVA+ Negozio Enel di Palermo
2,1 Km
IONITY Basile Palermo
2,3 Km
Conad Centro Commerciale Ai Leoni | EnelX
2,7 Km
CONAD SUPERSTORE Palermo Mandalà | EnelX
3,0 Km
Scuole Scuole
Istituto Comprensivo Statale "Luigi Capuana"
220 m
liceo classico Umberto I
470 m
Istituto comprensivo Manzoni - Impastato scuola dell'infanzia
480 m
Scuola Elementare Alessandro Manzoni
660 m
Peppino Impastato
820 m
Farmacia Farmacia
Farmacia
410 m
A.Amendola
470 m
Arena
480 m
Dr. Siagura
510 m
Farmacia Lauricella
620 m
Ospedali Ospedali
Ospedale dei bambini "Giovanni Di Cristina"
1,5 Km
Radial - Diagnostica per Immagini
2,0 Km
Ospedale Civico e Benefratelli "G. Di Cristina" e "M. Ascoli"
2,0 Km
Azienda Ospedaliera Universitaria Policlinico "Paolo Giaccone"
2,2 Km
Policlinico (Nuove aule)
2,4 Km
Supermercati Supermercati
Supermarket Todis
170 m
Quick
560 m
Md
630 m
COOP
810 m
Supermercati
900 m
Negozi Negozi
Alimentari Super Briò
60 m
S.Padre
130 m
Tanu
140 m
Shalini
140 m
Thipika Laxmy - Abbigliamento orientale indiano
170 m
Bar Bar
Il bacio nero
340 m
Vinile
420 m
San fransesco
600 m
I panini di Las Vegas
670 m
Cha
680 m
Ristoranti Ristoranti
Ristoranti
110 m
I Sapori del Mare
220 m
I Manciatari
250 m
Amira Trattoria Pizzeria Couscous
300 m
Antica Pizzeria del Corso
310 m
Mostra tutto

Caratteristiche

Rif.:
61122509
Piano:
2 di 2 (ultimo Piano)
Balconi:
1
Terrazzi:
2
Camere da letto:
2
Arredamento:
Assente
Mostra tutto
Prezzo Prezzo
€ 100.000
Rata mutuo Rata mutuo
€ 471 / mese
Spese annue Spese annue
€ 240
Proponi il tuo prezzoProponi il tuo prezzo

Classe Energetica

F
F
F
F
F
F
F
F
F
Anno di costruzione:
1930
Riscaldamento:
Assente

Ti interessa visionare l'immobile?

Fissa un appuntamento  Fissa un appuntamento

Richiedi informazioni

Clicca su Leggi per aprire l'informativa
* Questi campi sono obbligatori

Calcola il tuo mutuo

Semplice e senza impegno
Anticipo

( % )
Mutuo

( % )

pochi semplici passi

inserisci i tuoi dati
Questionario completato
Grazie per aver richiesto un appuntamento senza impegno con un nostro Consulente del Credito e Assicurativo.

Hai inserito correttamente tutti i dati necessari e a breve riceverai una e-mail con un link da convalidare per inviare i tuoi dati.
Affiliato
Studio Sammartino Sas
Via Dante, 56 A/B 90141 Palermo (PA)

Il nostro staff


  • Geremia Luca Biondo
    Collaboratore

  • Sofia Maria Di Falco
    Coordinatrice

  • Maria Bonaria Amoretto
    Affiliata

  • Rosalinda Amoretto
    Collaboratrice

  • Giulio Ruggieri
    Collaboratore
Via Dante, 56 A/B 90141 Palermo (PA)
Zona: Dante-Marconi-Tribunale-Parlatore
Mostra su mappa
Affiliato
Studio Sammartino Sas
Via Dante, 56 A/B 90141 Palermo (PA)

2026 Tecnocasa Franchising S.p.A. - P. IVA 08365160152 - Via Monte Bianco 60/A 20089 Rozzano (MI). Ogni agenzia ha un proprio titolare ed è autonoma. Privacy policy | Policy utilizzo | Cookie policy